
Schody
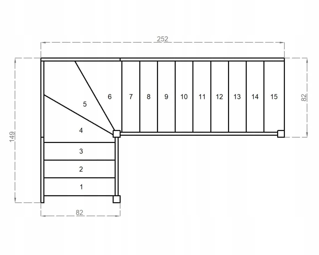
Zastanawiasz się, jaki otwór na schody zabiegowe wybrać? Poznaj wymiary, które pozwolą zaoszczędzić miejsce i zwiększyć komfort w Twoim wnętrzu.

Zastanawiasz się, jaki otwór na schody zabiegowe wybrać? Poznaj wymiary, które pozwolą zaoszczędzić miejsce i zwiększyć komfort w Twoim wnętrzu.